Behandlung im Hotelambiente
Eine Privatklinik in Lenzburg versprüht Wohlfühlatmosphäre statt kühles Ambiente. Das Behandlungsangebot wie Dermatologie und plastische Chirurgie wird mit höchsten Designansprüchen unterstrichen.

Praxen und Spitäler sind in ihren Innenräumen häufig nüchtern und kühl. Die für gewöhnlich mit Unbehagen verbundenen Arztbesuche werden dadurch kaum aufgehellt. Die auf Innenausbauten medizinischer Einrichtungen spezialisierte Praxisarchitekten AG wählte in Lenzburg einen völlig gegensätzlichen Ansatz. Mit hochwertigem Interieur, liebevoll arrangiert und mit Designanspruch, lädt die Privatklinik für Dermatologie und plastisch-ästhetischer Chirurgie seit 2018 zum Wohlfühlen ein. Patienten werden damit gewissermassen zu Hotelgästen.
Subtile Wiedererkennung
Die Klinik ist Teil eines neuen, im Lenzquartier situierten zwölfgeschossigen Wohnungsbaus. Als zusätzlicher Standort zum Stammsitz von Skinmed in Aarau erstreckt sie sich mit vier Ebenen auf einer Fläche von über 1600 Quadratmetern. Das Erdgeschoss bündelt die Dermatologie für ambulante Behandlungen in zwei Operationssälen sowie beispielsweise zur Früherkennung und Diagnose von Hautkrebs, Allergien, Neurodermitis oder Unverträglichkeitsreaktionen mit dem Empfang. Gepolsterte Loungesessel, Designerleuchten und Teppiche mit hohem Flor schmücken unter anderem den von raumhohen Verglasungen umgebenen Wartebereich und sind ein Indikator für das umfassende Gestaltungskonzept. Losgelöst von Lokalelementen, entstand eine standortunabhängig adaptierbare Markeninszenierung. Möblierungen und Teppiche in punktuell von dunklem Braun kontrastierten Grau- und Blautönen setzen die vorherrschenden farblichen Akzente zu «medizinisch» weissen Wänden sowie hellen Steinböden. «Die Tonalität des Firmenemblems war massgebend für das Farbkonzept der Innenräume. Die Blautöne wirken unaufdringlich und erzeugen eine subtile Wiedererkennung», verrät Tatjana Vogel von Praxisarchitekten AG. Dunkle Decken- und Wandpaneele aus Fichtenholz kamen in der gesamten Praxis ebenso stringent zum Einsatz. «Das Holz vermittelt Wärme und wandert von der Decke zu den Wandverkleidungen bis zum Parkettboden», sagt die Innenarchitektin. Überdimensionierte Platten im Eingangsbereich und Thekenverkleidungen aus Sichtbeton fungieren zudem als zurückhaltende rustikale Details. Eigens entworfene Regale mit schmalen Metallprofilen und grosse hinterleuchtete Fotowände dienen darüber hinaus als dekorative Accessoires.
Möglichst frei von klinischen Attributen
Neben Büroräumen und grosszügigem Konferenzzimmer ergänzt seit 2019 auch ein Histopathologielabor das erste Obergeschoss. Was sonst von externen Laboren verrichtet wird, kann damit zeitsparend vor Ort erledigt werden: die Untersuchung von Hautgewebe auf Veränderungen oder Krankheiten.
Die beiden von der Abteilung für plastische Chirurgie genutzten Operationssäle der Klasse 1 im zweiten Obergeschoss sind für Eingriffe wie Faceliftings, Nasenkorrekturen, Brustkorrekturen oder Körperstraffungen ausgerüstet. Sie verfügen über modernste Medizintechnik, eine spezielle Lüftungsanlage und entsprechen den höchsten Standards und Sicherheitsanforderungen. Die Behandlungen sollen unter den gleichen strengen Bedingungen erfolgen wie gesundheitlich notwendige Operationen. Zudem befinden sich auf der Etage vier Zimmer für Patienten mit stationärer Behandlung. Klinische Attribute sucht man dort nahezu vergebens, eher gleichen sie Hotelzimmern im gehobenen Segment. Textile Überzüge verbannen die medizinische Technik unter den Rollbetten aus dem Sichtfeld. Minibar und Espressomaschine kombinieren die stilvolle Badausstattung und das hochwertige Designinterieur. Wärmepumpen erzeugen Energie für Wärme und Kühlung in der Praxis. Sie sind an ein Energienetz mit Erdregistern angebunden, das zudem zur Versorgung diverser Gebäude im Umfeld genutzt wird. Der Effekt aus Funktionalität und Behaglichkeit greift in Lenzburg dadurch vollumfänglich. Die «baulich-chirurgischen» Eingriffe sind in jeder Hinsicht geglückt, sodass bereits weitere Standorte gleichen Erscheinungsbildes in Olten und voraussichtlich in Zürich anvisiert werden. Trotz wohnlichem Ambiente erfüllt die Klinik mit Spitallizenz alle erforderlichen klinischen Hygieneauflagen. Mit Blick auf die derzeitige pandemische Situation verrät Fabian Scherer von Praxisarchitekten AG: «Das Gesundheitswesen ist eine stabile Nische in der Architektur. Hygienekonzepte und dahingehende spezielle Anforderungen waren schon immer ein fester Bestandteil davon. Auf die Herausforderungen der Pandemie sind wir deshalb bestens vorbereitet.» ●
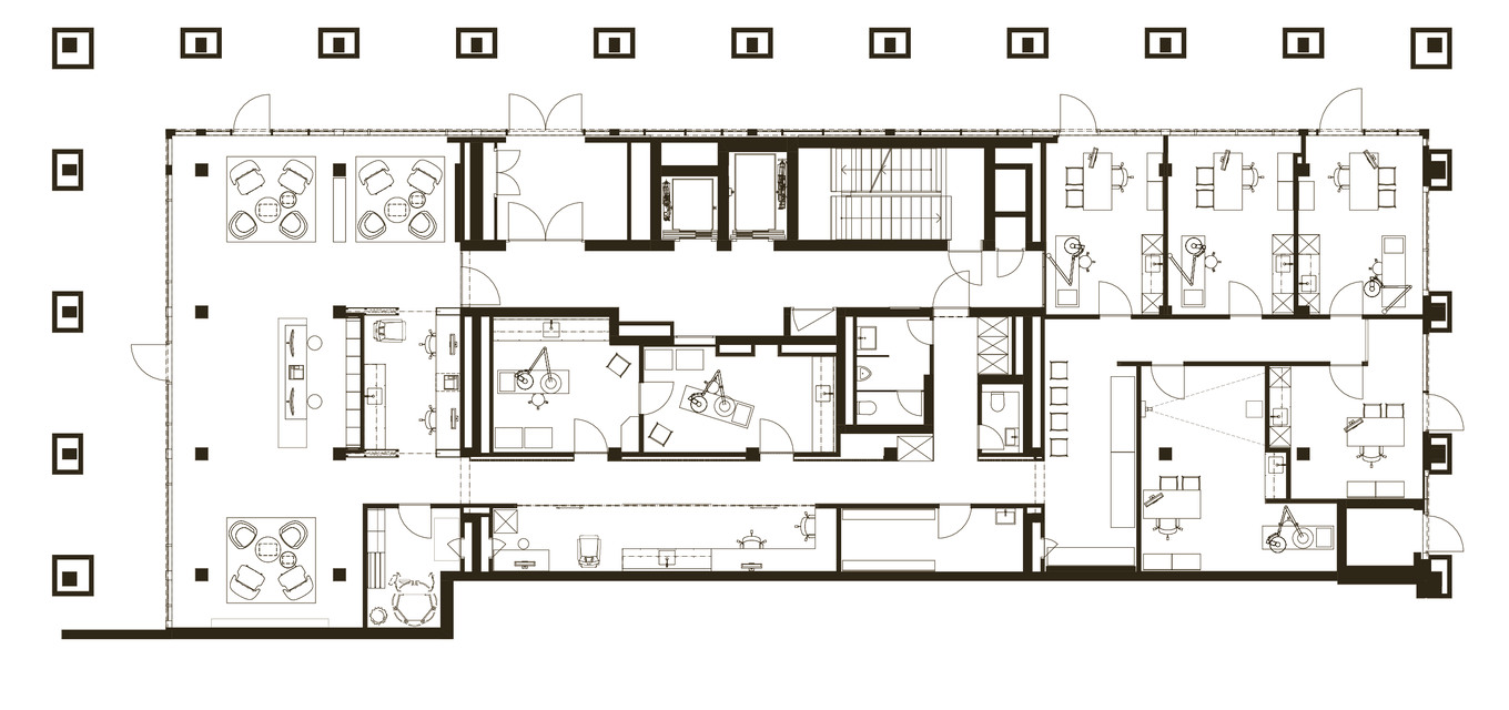
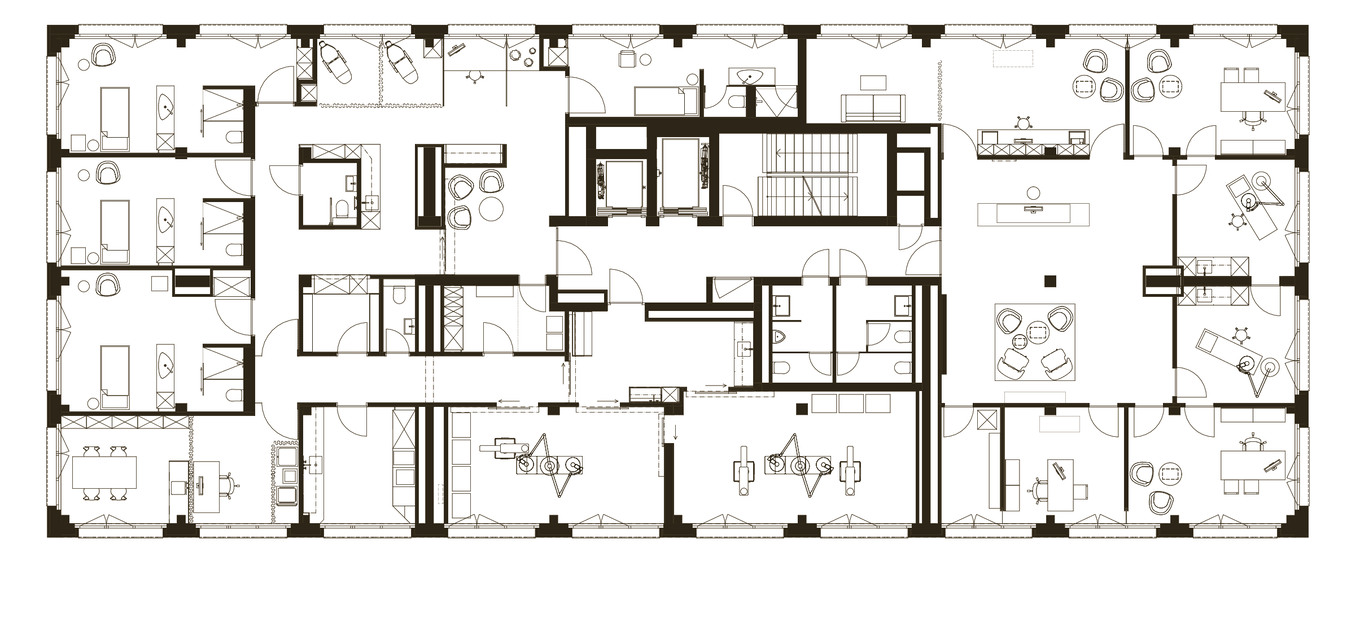
Gebäudenutzung
3. bis 10. OG Wohnungen
Skinmed AG
EG Dermatologie (Empfang mit Wartebereich, Behandlungsräume, Multifunktionsräume, Praxis-Operationszimmer, Puva, Labor)
1. OG Büros der Geschäftsleitung, Sitzungszimmer, Labor der Pathologie
2. OG Plastische Chirurgie (Empfang mit Wartebereich, Beratungszimmer, Operationssäle Typ 1, Sterilisation, Aufwachbereiche für ambulante Patienten, Bettenzimmer für Übernachtungspatienten, Backoffice)
11. OG Haartransplantation, zusätzliches Grossraumbüro, zwei Sprechzimmer für plastische Chirurgie, Trainingscenter des Swiss Aesthetic Institute
Bautafel
Objekt Privatklinik für Dermatologie und plastisch-ästhetische Chirurgie
Standort Lenzburg
Fertigstellung 2019
Bauherrschaft Skinmed AG
Innenarchitektur Praxisarchitekten AG
Bruttogeschossfläche 1662 m²
Parkett Cabana, Exklusivstab Terra Astano (Fertigparkett), Eiche geräuchert
Steinboden Mirage
Beleuchtung XAL, Regent, Zumtobel, Metalarte
Möblierung HAY, Norr 11, Zeus, Taccini
Textilien Kvadrat, Création Baumann, Kymo









