Gesundheitsbauten – Liebliche Wiederbelebung
Das Alterszentrum St. Peter und Paul in Zürich wird durch einen Anbau von Platznöten befreit. Knorr & Pürckhauer Architekten setzen diesem ein verspieltes Häubchen auf und schaffen damit einen festlichen Blickfang in enger Blockrandbebauung.

Hofgebäude sind in Zürich keine Seltenheit. Sie gewähren zusätzliche Nutzungsfläche, aber halten sich als Erweiterungs- und eigenständige ein- oder zweigeschossige Bauten in der baulichen Gestaltung häufig elegant zurück. Wurden diese früher noch vorwiegend als Werkstätten oder für das Kleingewerbe genutzt, sind inzwischen ebenso Ateliers, Büros oder Arztpraxen darin zu finden. Seit 2020 belebt ein Erweiterungsbau den Innenhof eines Blockrands am Hallwylplatz im Zürcher Stadtkreis 4. Knorr &Pürckhauer Architekten interpretieren damit das Hofgebäude auf neue Weise.
Wiederbelebter Innenhof
Das 1973 bezogene Alterszentrum St. Peter und Paul erhält dadurch ein zusätzliches Raumangebot. Die benachbarte und 1874 fertiggestellte neugotische Kirche St. Peter und Paul war das erste römisch-katholische Kirchengebäude Zürichs nach der Reformation und steht seit 1980 unter Denkmalschutz. Sie wird von der gleichnamigen Pfarrei und Kirchgemeinde genutzt, die zugleich als Bauherrschaft des Alterszentrums und des Hofgebäudes fungiert.
«Gesucht war ursprünglich ein Neubau mit rund 20 Alterswohnungen», nennt Franziska Imfeld, Leiterin Alterszentrum St. Peter und Paul, das ursprüngliche Ziel des dafür ausgerufenen Wettbewerbs, den die Architekten mit «La vie est belle» für sich entscheiden konnten. Ein Nachbar erhob jedoch Einsprache, das Projekt stagnierte. «Die Stadt Zürich gab daraufhin das Signal zur Revitalisierung des Innenhofs», erklärt Marco Caviezel, Projektleiter von Knorr & Pürckhauer Architekten. Diesem fehlte es an qualitätsvollen Aufenthaltszonen. Die höheren Ansprüche an das Wohnen im Alter und der daraus resultierende Mangel an Räumlichkeiten im Alterszentrum liessen sich damit ideal kombinieren. Die Idee zum Hofgebäude mit dem Wunsch an eine quartierumfassende Eingliederung entstand.
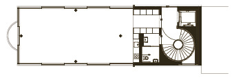
Schichtung gleicher Räume
Bei einer bebaubaren Parzellenfläche von einem Drittel war ein kompakter Baukörper mit schlankem Erschliessungssystem folglich vorgegeben. «Ideal war hierfür eine enorm effiziente Wendeltreppe», sagt Caviezel. Das massiv betonierte, an die Brandwand zum Nachbargebäude anschliessende Bauteil dient zusätzlich zur Aussteifung und führt über alle Etagen bis ins Untergeschoss, wo der Erweiterungsbau per Schleuse mit dem Alterszentrum verbunden ist. Die Aula praktiziert dort Formalität unter Addition sakraler Elemente wie einer Apsis oder der Statue von Maria zur Verdeutlichung des katholischen Hintergrunds. Sie vollendet das Konzept zur Schichtung dreier nahezu gleicher Räume mit völlig verschiedenen Charakteristiken. Terrazzoböden und Akustikdecke sind von verputzten, mit schweren Textilvorhängen bestückten Wänden umgeben. Ein halbrundes Oberlicht im Bereich der Apsis lässt Tageslicht in den Innenraum und unterstützt das sakrale Ambiente. Die Definition dafür war richtungsweisend. Als Kapelle wäre die Aula ausschliesslich auf Gottesdienste beschränkt. So bleibt sie multifunktional und kann für gemeinschaftliche Aktivitäten wie Filmvorführungen oder Anmietungen der Quartiersbewohnenden genutzt werden.
Die Apsis flankierenden und zugleich gestalterisch nützlichen Nischen sind aufgrund der dort befindlichen Unterzüge statisch relevant. Der Architekt schildert: «Eine ‹Betonwanne› mit vier Stützen und Deckenplatte bildet hier die konstruktive Lösung. Erd- und Obergeschoss sind als Holzkonstruktion ausgeführt.»
Facettenreiches Spiel
Das Erdgeschoss dient den Bewohnenden des Alterszentrums als variabel nutzbarer Raum und ist stilistisch deutlich freizügiger. Durch vollflächige Verglasungen mit fliessenden Übergängen zum Innenhof gewinnen die Räumlichkeiten an Weite. Im Streben nach Interaktion mit dem Aussenraum können Hobbys wie Kochen, Nähen, Basteln oder geselliges Zusammensein beliebig nach aussen verlagert werden. «Der Hofplatz dringt förmlich in den Saal hinein. Weit bis zu den Ecken öffenbare Fensterelemente unterstützen das», sagt der Architekt. Textilvorhänge geben jedoch bei Bedarf Intimität und forcieren das Wechselspiel aus Intro- und Extrovertiertheit, das sich bis in das Obergeschoss erstreckt.
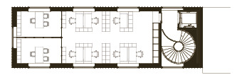
Ein nahezu vollständig aus grünem voroxidiertem Kupfer bestehendes Dachkleid verhüllt dieses nach aussen. Holzlattungen mit daran aufgebrachten Gipsverkleidungen kreieren das Innenleben der Bürozimmer. Weiche Übergänge mit geschwungenen Linien erschaffen eine fliessende organische Rauminszenierung, die jegliche harte Konturen verbietet. Diese Ebene nur zugewiesenem Personal zu öffnen, kommt beinahe einem Versäumnis gleich. Kreisförmige Öffnungen lassen Tageslicht hinein. «Gauben statt Fenster zu wählen, war eine Art Befreiungsschlag im Entwurfsprozess. Alles baut auf dem Raster der Fenster auf, um dem Gebäude einen Rhythmus zu geben», verrät Caviezel. Pavillonbauten des Schlossparks im schwedischen Drottningholm oder ein Gartenpavillon von Sigurd Lewerentz in Stockholm dienten dafür unter anderem als Inspiration. Die roten Textilstoren erinnern hingegen an traditionelle Blumenläden in Mailand.
Harmonische Beziehung
«Wir suchten etwas Verspieltes, Festliches, aber auch Liebliches», sagt der Architekt zu den markantesten gestalterischen Komponenten. Als diese gefunden waren, transferierte man sie auch in das Treppenhaus. Der Handlauf am Messinggeländer schlängelt sich bis zur Kuppel und wirkt – wie vieles im Hofgebäude – bewusst verspielt. Farbige und aufsteigend sich vermehrende Blütenblätter vermischen sich mit Vogelmalereien sowie Messingziffern zur Etagenkennzeichnung und applizieren die hell verputzten Wände im Treppenhaus. Sie sind Teil der «Kunst am Bau» von Huber.Huber und garnieren die durchgehend barocke und vom Jugendstil angehauchte Gebäudegestaltung. Das Emblem der Pfarrei und Kirchgemeinde ziert zudem den Boden im Untergeschoss innerhalb des Treppenauges.
«Das Haus hat etwas extrem Freundliches und geht eine harmonische Beziehung mit seinem Standort ein», sagt Marco Caviezel. Ein Eröffnungsfest sollte ursprünglich auf die Übergabe im Oktober 2020 folgen. Durch die pandemische Situation ist dieses verschoben. «Das Hofgebäude ermöglicht den Bewohnenden nun zeitgemässe Beschäftigungen in hellen Räumen und Gärten. Auf strategischer Ebene wird derzeit ein Umbau des Alterszentrums diskutiert», sagt Imfeld mit Blick auf anstehende Prozesse. Auch die Alterswohnungen seien nicht aufgehoben, versichert sie: «Diese bleiben weiterhin im Blickfeld.» ●
Bautafel
Objekt Hofgebäude als Erweiterungsbau
Standort Zürich
Fertigstellung 2020
Bauherrschaft Katholische Pfarrkirchenstiftung St. Peter und Paul
Architektur Knorr & Pürckhauer Architekten














