Neues Lernzentrum
Brandenberger Kloter Architekten haben auf einem bestehenden Schulgelände in Aarwangen ein neues Primarschulhaus erbaut – und damit ein neues Zentrum im Dorf geschaffen. Denn der Neubau Sonnhalde fügt sich mit den vorhandenen Bauten zu einem Ensemble zusammen, welches das Gelände jetzt klar einfasst.
Von Katharina Marchal (Text) und Basile Bornand (Bilder)

Die Basler Architekten Oliver Brandenberger und Adrian Kloter haben mit dem neuen Primarschulhaus in der kleinen Gemeinde Aarwangen im Kanton Bern einen Schulcampus mitten im Dorf geschaffen. Der Neubau bildet gemeinsam mit dem bestehenden Hallenbad, dem Oberstufenschulhaus und dem Mehrzweckgebäude ein neues Ensemble. Dieses fasst das Gelände samt Sportplatz klarer als zuvor ein und bildet zudem einen neuen Platz für Versammlungen. Zur Strasse hin markiert das Gebäude – gleich einem Tor – den Zugang auf dem Campus Sonnhalde; zusammen mit dem alten Baumbestand entsteht hier eine grosszügige Grünanlage mit Spielplätzen für den Kindergarten. Die Aufwertung der gesamten Anlage schätzen nicht nur die Kinder, sondern die gesamte Bevölkerung von Aarwangen.
Damit sich der Solitär in das bestehende Umfeld integriert, wählten die Architekten einen fugenlosen Ortbeton als Konstruktions- und Fassadenmaterial. Dieser lehnt sich an die Vorgängerbauten aus den Sechzigerjahren an. Um die kompakte Form des Baukörpers zu gliedern, unterteilen die leicht hervorstehenden Brüstungsbänder das Volumen horizontal. Indem die Lüftungsflügel hinter der Fensterebene liegen, wird die streng kubische Form aufgebrochen.
Offenheit und Transparenz
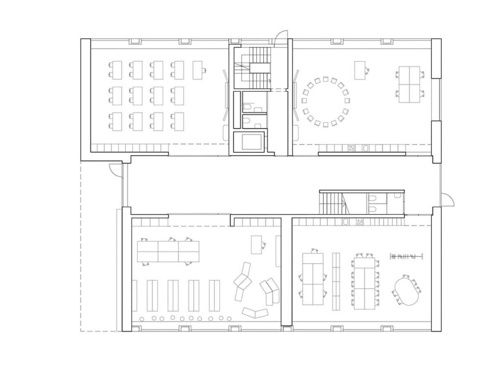
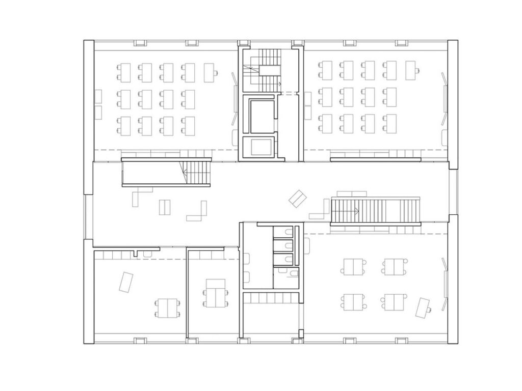
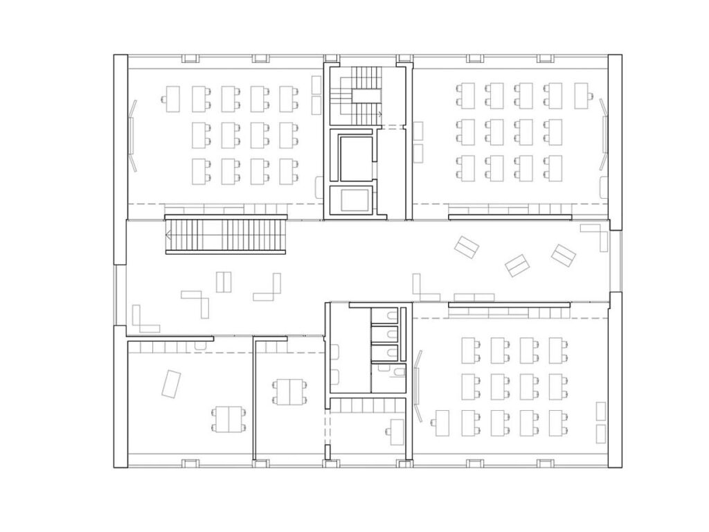
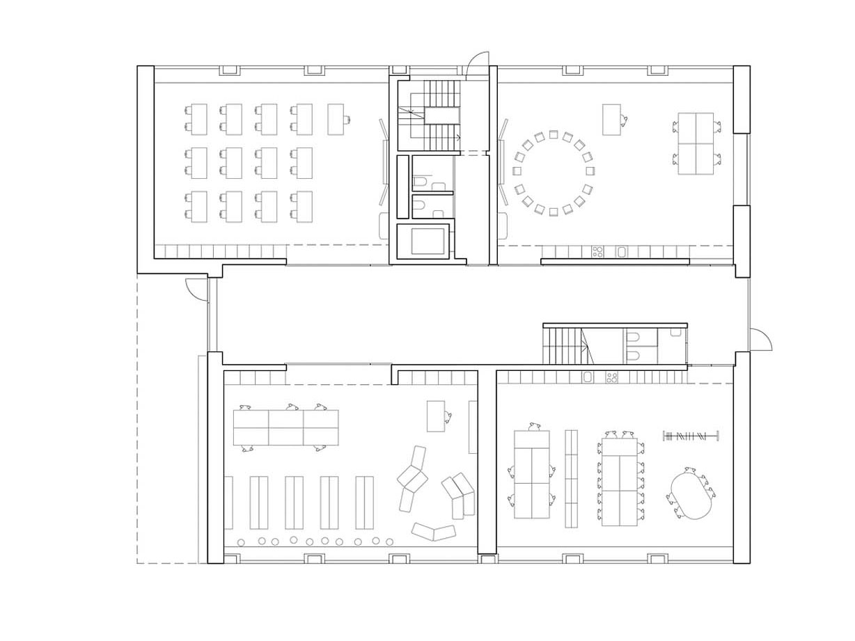
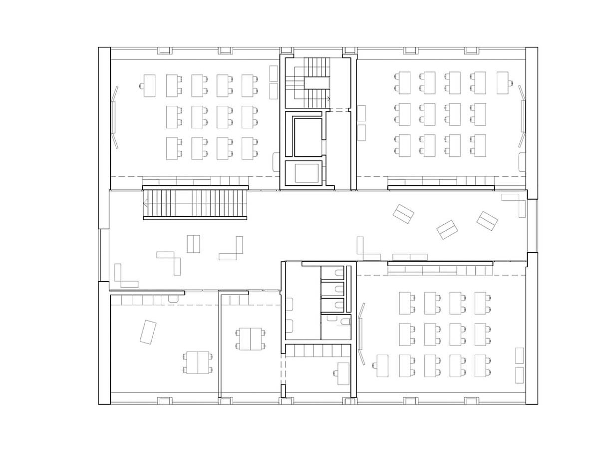
Im Innern ist das Schulhaus leicht verständlich aufgebaut: Ein tiefer Gebäudeeinschnitt weist den Eingang in die Schule und führt in den sehr grosszügigen Eingangsraum. Von hier aus werden alle Ebenen und Zimmer der Schule erschlossen. Dazu gehören im Erdgeschoss die Bibliothek, der Kindergarten und die Werkräume; in den Obergeschossen befinden sich vor allem Schulzimmer. Indem die zwei gegenläufigen Treppen versetzt angeordnet sind, durchqueren die Kinder und Erwachsenen jede Ebene und wechseln, oben angekommen, die Blick- und Gehrichtung. Dabei schweift der Blick nicht nur nach draussen – der durchgesteckte Raum ermöglicht den Ausblick zu beiden Seiten und erleichtert damit die Orientierung –, sondern auch durch die verglasten Türen zu den geräumigen und hellen Schulzimmern.

Zusätzlich verfügt jeder Unterrichtsraum über ein grosses Fenster zum Gang, das sich als Sitznische oder Aussichtsplatz eignet. Da manche Lehrpersonen ohnehin bei geöffneten Türen unterrichten oder den Unterricht gleich in den Flur verschieben, kommt das dem Wunsch nach Offenheit und Transparenz entgegen. Hilfreich sind hierbei die fahrbaren und verstaubaren Regale, mobile Tische und Lernmittel wie Touchscreens. Ein spielerisches Detail, das überdies die Aufgabe der Signaletik übernimmt, sind die mit Punktrastern bedruckten Gläser: Erst auf den zweiten Blick sind dort Tiere wie Eichhörnchen, Rotfuchs und Feldhase zu entdecken. So können sich die Kinder mit ihrem Klassenraum identifizieren. Sowohl in den Klassenräumen als auch im grosszügigen Gang finden sich zahlreiche Details einer kindgerechten Gestaltung.


So ermöglichen die gelochten Holzpaneele mit passenden Holzhaken den Kindern, ihre Garderobenwand je nach Körpergrösse und nach ihren Vorstellungen einzuteilen. Böden, Ausbau und Möbel sind aus massiven, robusten und nachhaltigen Materialien: so das Industrieparkett, das den Räumen im Obergeschoss einen Werkstattcharakter verleiht, oder vor dem Eingang die Bank aus Eichenholz, das aus dem Gemeindewald stammt.
Langlebig und nachhaltig
Im Erdgeschoss sind der Boden im Gang wie die Treppe ins Obergeschoss aus geschliffenem schwarzem Gussasphalt. Durch die Wahl dieser langlebigen und damit nachhaltigen Materialien reduziert sich der Unterhalt. Zusammen mit den Holzverkleidungen aus Esche und Eiche strahlen sie gleichzeitig Wärme und Geborgenheit aus.
Um die rohen Betondecken möglichst sichtbar zu lassen, wurden die Wände der Garderoben im Gang mit perforierten Akustikplatten aus Holz verkleidet und die Wände der Klassenzimmer mit Furnieren oder Einbauregalen aus Holz bestückt. Die sichtbaren Betondecken haben den Vorteil, dass sie als Speichermasse genutzt werden können, und leisten einen grossen Beitrag an die Behaglichkeit in den Sommermonaten. So kühlt die kalte Zuluft der kontrollierten Lüftung die Decken nachts ab, die Kälte wird tagsüber an die Räume abgegeben.
Hinzu kommt der Aspekt der Nachhaltigkeit, denn einzelne Bauteile können besser recycelt werden. Des Weiteren sollte die Ästhetik der Materialien nachvollziehbar sein. Ganz bewusst ist deshalb die LED-Beleuchtung direkt von der Betondecke abgehängt. Um den mittigen Gang besser zu erhellen, öffnet sich eine Oberlichtdecke über den letzten Treppenlauf gegen den Himmel. Zusätzlich ist ein Lichtband in den Treppenhandlauf integriert. Der offene Charakter des Gebäudes schafft eine ideale Lernatmosphäre mit vielfältig nutz- und gestaltbaren Räumen für Kinder und Lehrpersonal. Zugleich haben Brandenberger Kloter Architekten durch den Neubau ein Ensemble gestaltet, das einen neuen Schulcampus und ein neues Zentrum für die Gemeinde bildet.
Kind als Grundlage
Wie bei anderen Bauten für Kinder nahmen auch hier die beiden Basler Architekten die Perspektive des Kindes als Grundlage für den Entwurf. Zuvor realisierten sie das mit dem Best Architects Award 21 ausgezeichnete Schulhaus Pfeffingen BL, dessen kubischer Baukörper ein leicht verständliches Raumkonzept bietet. Der Doppelkindergarten in Winkel ZH, eine einfache Schottenstruktur am Hang, ist durch den Einsatz von Klinkerstein und Eiche sinnlich erfahrbar, und in Birrwil AG nutzen die Architekten den Garderobenbereich des im Frühjahr 2022 vollendeten Schulneubaus für eine tiefergelegte Aula mit Sitzstufen. ●








