Was lange währt
Ein Engadinerhaus in Latsch ist als bedeutender Beitrag zum Bauen im Gebäudebestand zu sehen. Das über 50 Jahre unbewohnte Haus wird dabei im respektvollen Umgang mit der Bausubstanz reaktiviert.

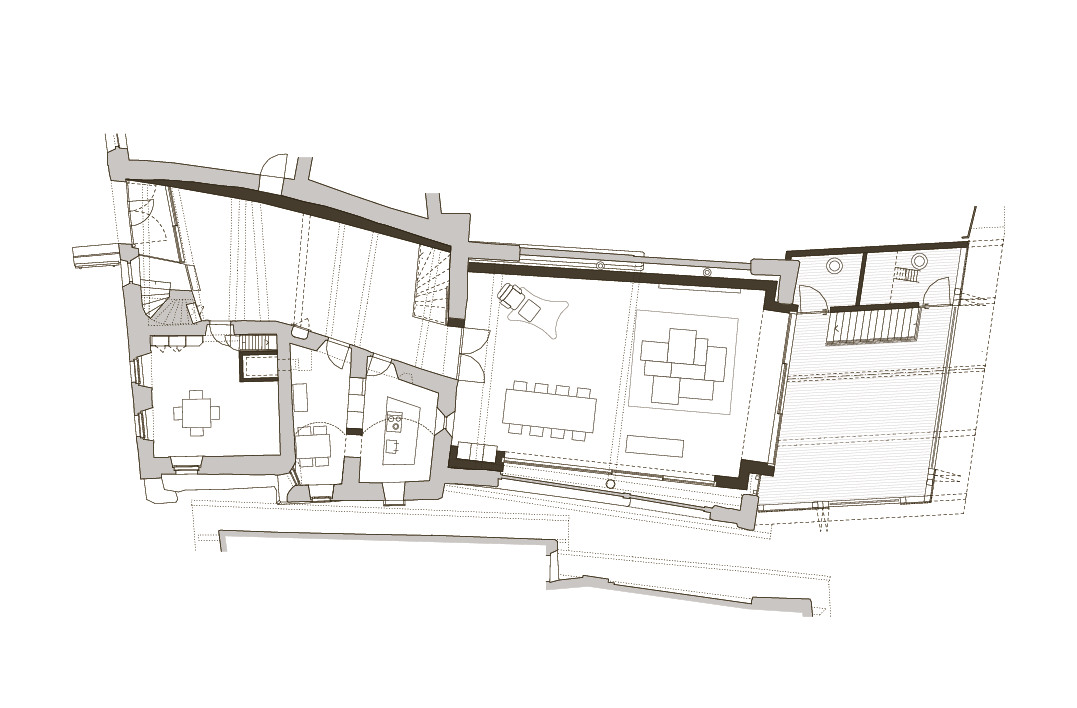
Ein 350-jähriges baufälliges Engadinerhaus im graubündnerischen Latsch wird durch Felix Partner Architektur und Design wiederbelebt. Die 2020 fertiggestellte Instandsetzung erfolgte dabei aufgrund komplexer Besitzverhältnisse erst nach einem Leerstand von über 50 Jahren. Gegenüber der Kirche nimmt das Gebäude zudem eine zentrale Position im Ortsbild ein, das sehr traditionell wirkt und überwiegend von Engadinerbauten geprägt ist. Unter der erfolgreichen Erhaltung der historischen Bausubstanz wird es den modernen Wohnbedürfnissen angepasst.
Klar ablesbar
Ein Rundbogentor führt zum Vorraum, der einst als Entree zu den Wohnräumen und für die Heuwagen ebenso als Durchfahrt zur Scheune genutzt wurde. Die Wohnräume offenbaren die Hybridkonstruktion aus massivem Stein und Holz, das in Strickbauweise verarbeitet wurde. Für die auf wenige Materialien beschränkten, neu implementierten Konstruktionen kamen Sichtbeton, schwarzer Stahl sowie naturbelassenes und unbehandeltes Lärchenholz zum Einsatz. «Hinzu kam eine Brandschutzmauer zum Nachbargebäude über die gesamte Höhe des Hauses. Das erschwerte die statische Umsetzung, weil dadurch sämtliche Balken – auch im Dach – nicht mehr durchgehend verlaufen konnten», erklärt Peter Felix von Felix Partner Architektur und Design. Die Formensprache bleibt reduziert und respektvoll. Bestehende und neue Baustrukturen sind somit klar ablesbar und schärfen das Verständnis für die langjährige Geschichte des Wohnhauses.
Ein Treppenkern aus Sichtbeton erschliesst die drei Obergeschosse. Die ehemals zur Heulagerung genutzte Scheune dient inzwischen als Wohnhalle, ein angrenzender Stall wurde zur grosszügigen Loggia. Ehemalige Durchgänge und Stallungen für Ziegen dienen nun als Garderoben und Technikräume. Eine Vielzahl an Elementen wie Bruchsteinmauerwerk, Balken, Holzböden und barocke Möbel, aber auch ganze Zimmer und die pechschwarze Räucherkammer wurden zudem fachgerecht restauriert. Das trägt zur Beibehaltung des historischen Charmes bei, der unter anderem über Gerüche, Materialien und Oberflächen transportiert wird.
Neu interpretiert
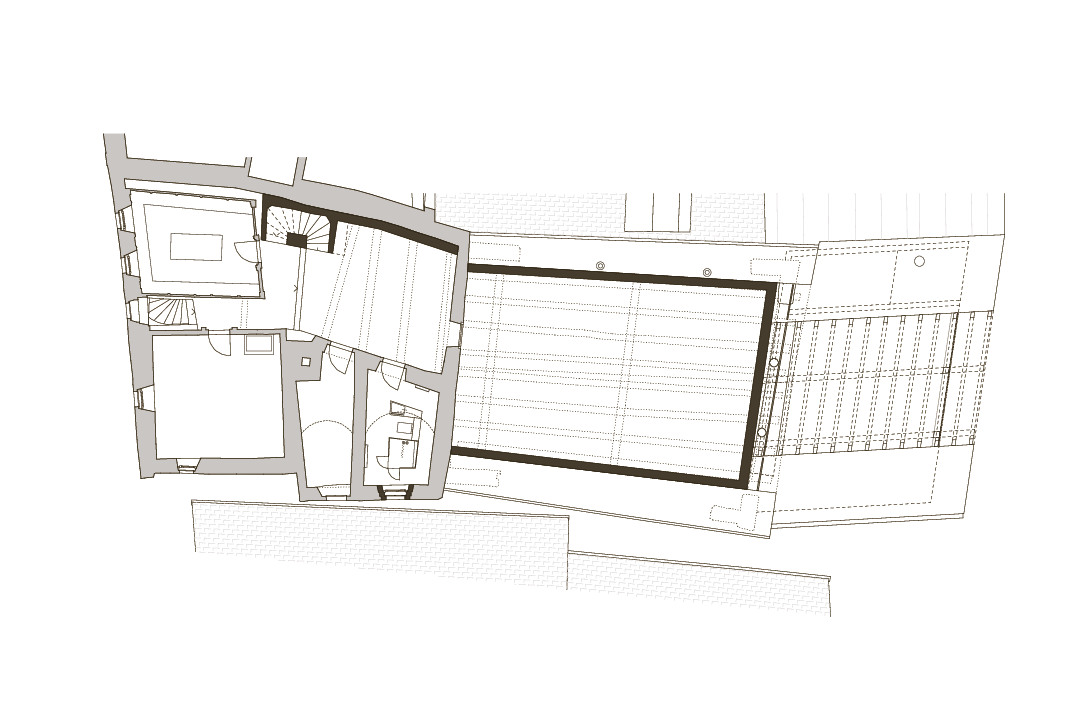
Das Untergeschoss des Engadinerhauses entschwindet dieser geschichtsträchtigen Phalanx, indem es mit einem komplett aus Sichtbeton gefertigten Spa stilvolle Designelemente integriert und den Blick über die Bündner Berge gewährt. Pool, Whirlpool und Dampfbad werden von einbetonierten Unterputzarmaturen, massgeschneiderten unsichtbaren Wasserrinnen, frei stehenden Spiegeln und Schiebetüren mit unsichtbaren Führungsschienen in Szene gesetzt. Lavabos, Duschtassen und die Badewanne entstammen hingegen einer Eigenkreation aus vorfabriziertem Sichtbeton. Der einheitliche Leuchtentyp in mehreren Variationen ist ebenfalls eine Sonderanfertigung. Die für Engadinerhäuser typischen Quadermalerien sind zudem als moderne Neuinterpretation ein durchgängiges Gestaltungselement in den Innenräumen, im Masterbad und in der Wohnhalle. «Die Haustechnik sollte möglichst unsichtbar in das Gebäude integriert werden und die bestehende Substanz nur geringfügig verändern. Deshalb haben wir unter anderem eine Bodenheizung im Untergeschoss, eine Wandheizung im Erdgeschoss und teilweise im Dachgeschoss verwendet», sagt der Architekt. Nur in den alten Kammern wurden Radiatoren sichtbar eingebaut – in harmonischer Abstimmung mit dem historischen Bestand. ●








