Differenzierte Materialwahl

Mit dem Wohnbau «vis-à-vis» hat das Architekturbüro luna productions in Deitingen ein spezielles Gebäude realisiert.

Holzbauplaner
Die Aussenwände der beiden Wohnkuben sind aus gemauertem Kalksandstein, die aussen gedämmt und mit einer sägerohen Fichtenschalung verkleidet wurden. Fotos: Mark Drotsky
Mehrfamilienhaus in Mischbauweise
Mit dem Wohnbau «vis-à-vis» hat das Architekturbüro luna productions in Deitingen ein spezielles Gebäude realisiert.
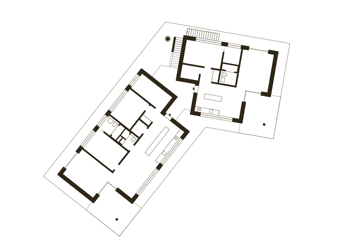
Ziel war es, ein Mehrfamilienhaus zu realisieren, das eine hohe und langfristige Wirtschaftlichkeit aufweist. Bauherrin war die Schreinerei Gebr. Frei AG, deshalb sollte das Gebäude auch mit viel Eigenleistung der Schreinerei erbaut werden. Und schliesslich sollten nebst der Wohnfläche auch attraktive Lebensräume fürs Quartier geschaffen werden.Der Neubau bildet den Abschluss der gebauten Struktur und definiert einen gemeinsamen Hof. Das Mehrfamilienhaus ist zur Strasse hin orientiert. Der Strassenraum in dieser hofartigen Situation bildet zusammen mit dem Gegenüber einen Begegnungsraum für die ganze Nachbarschaft.

In dem von der Strasse abgewandten Raum entstand ein privater Aussenraum am Bach mit Blick in die Natur. Auf einem Betonfundament und unter einem Satteldach stehen die beiden Holzkuben mit einspringender Ecke abgewinkelt zueinander. Der Zwischenraum bildet die Eingangsbereiche. Durch das Aufbrechen und das Abwinkeln des Volumens entstanden Räume und Proportionen, die der Umgebung entsprechen. Trotz der hohen Dichte haben die Bewohner ihre eigenen vier Wände, und die Aussenräume sind grosszügig und nutzbar. Im Zentrum der Wohnungen befindet sich der gegen Süden und zum «Hof» hin orientierte Essbereich, um den alle Zimmer angeordnet sind. Materialien in ihrer rohen Form dominieren und werden sichtbar altern. Zwei Obstbäume wurden verpflanzt und in die neue Umgebung integriert. Ein Kirschbaum wurde gefällt und nur wenige Meter daneben wieder errichtet. Er trägt mit seinen Ästen das Dach.

Material und Konstruktion

Das Gebäude wurde in Mischbauweise (Massiv-/Holzbau) konzipiert. Die Aussenwände der beiden Wohnkuben sind aus gemauertem Kalksandstein, die aussen gedämmt und mit einer sägerohen Fichtenschalung verkleidet wurden. Die Wände zur Erschliessung sind zweischalig und mit einer äusseren Schicht aus rohem Beton konstruiert. Diese gewährt als aussteifendes Element die Erdbebensicherheit und übernimmt die hohen Anforderungen an Akustik und Brandschutz. Mit der unbewehrten, dampfdiffussionsoffenen Konstruktion aus Kalksandstein und Holzverkleidung konnten im Wohnbereich die hohen Ansprüche an das Wohnklima erfüllt werden. Die Innenwände aus einer Holzständerkonstruktion sind nicht tragend und mit Fichtenriemen beplankt. Das ermöglichte der Bauherrin ein hohes Mass an Eigenleistung, unabhängig von Witterung und Bauprogramm, und gewährleistet Anpassungen im Innenraum für zukünftige Bedürfnisse. Das Prinzip des Verbindens von Massiv- und Holzbau mit ihren unterschiedlichen Stärken und Eigenschaften wird auch im Innern weitergeführt. So sind die Nasszellen massiv, mit Kalksandsteinen und mit einer wasserfesten Beschichtung, ausgeführt. Das Haus wurde nach baubiologischen Grundsätzen konzipiert. So wurden die Materialien wenn immer möglich roh oder mit schadstoffarmen Anstrichen (Kalkfarbe) verbaut, und es wurden Schweizer Holz und Rohstoffe verwendet. Die Elektroverteilung /-erschliessung wurde so geplant, dass sich keine Leitungen unter den Schlafräumen befinden und die Wohn- und Schlafräume stromfrei geschaltet werden können.

Auch bei der Umgebungsgestaltung wurde auf einen sorgsamen, ressourcenarmen Umgang mit dem Bestand geachtet. So wurde ein bestehender Kirschbau zwar gefällt, aber neu ins Haus integriert, er trägt als konstruktiv und optisch prägendes Element das Dach.

Auch die zwei Obstbäume, die für den geplanten Parkplatz weichen mussten, wurden von einer spezialisierten Firma ausgegraben, im neuen Umgebungskonzept wieder eingebunden und neu verpflanzt.

Herausforderungen

Eine Herausforderung war die Durchdringung der sichtbaren Dachkonstruktion aus Holz mit den Wänden aus rohem Beton in der Erschliessungszone. Damit die geforderte Genauigkeit trotz der komplexen Abwinkelung der Dachkonstruktion und den einspringenden Ecken der Wandkonstruktion realisiert werden konnte, wurde die gesamte Konstruktion dreidimensional im Computer aufgebaut und wurden die Aussparungen für die Sparren nach diesem Modell berechnet und vorfabriziert. Auf der Baustelle wurden dann die einzelnen Holzformen mittels Theodolit genau ausgemessen und montiert (Zusammenspiel: Holzbau – Baumeister – Planung).

Auch für die Platzierung des bestehenden Baumes unter der Dachkonstruktion war eine gute Zusammenarbeit zwischen den verschiedenen Akteuren wichtig. So wurde der Baum vom Architekten vermessen und dreidimensional erfasst, mit dem Holzbauplaner wurden die statischen Anforderungen und Auflagerpunkte definiert, und schliesslich wurde der Baum gemeinsam – in verschiedenen Arbeitsschritten –platziert und montiert. ●

Bautafel

Bauherrschaft Schreinerei Gebr. Frei AG, Deitingen

Architekt luna productions GmbH, Deitingen

Ingenieur SPI Planer und Ingenieure AG, Luterbach

Baumeisterarbeiten Bernasconi Bau AG, Luterbach

Holzbau Schärli Holzbau AG, Wangenried19

Holzbauplaner
Der Neubau bildet den Abschluss der gebauten Struktur und definiert einen gemeinsamen Hof.
Holzbauplaner
Ein gefällter Kirschbaum wurde ins Haus integriert. Im Vordergrund der ursprüngliche Baumstrunk.
Holzbauplaner
Holzbauplaner
Das Prinzip des Verbindens von Massiv- und Holzbau mit ihren unterschiedlichen Stärken und Eigenschaften wurde auch im Innern weitergeführt.
Holzbauplaner
Materialien in ihrer rohen Form dominieren und werden sichtbar altern.
Holzbauplaner
Holzbauplaner
Holzbauplaner
Schnitt
Schnitt Wohnung
Erdgeschoss
Erdgeschoss
(Visited 106 times, 1 visits today)

Weitere Beiträge zum Thema

up to date mit dem
Architektur+Technik Newsletter
Erhalten Sie exklusive Trends und praxisnahe Innovationen mit Architektur+Technik –direkt in Ihr Postfach.
anmelden!
Sie können sich jederzeit abmelden!
close-link