Ein bedeutendes Gut
Die Eisenbahnersiedlung Weissenstein zählt zu den bedeutendsten genossenschaftlichen Gartenstadtsiedlungen der Schweiz. W2H Architekten implementierten während des Umbaus einen zeitgemässen Nutzungsmix.

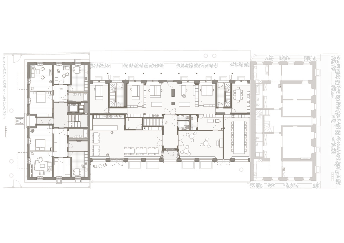
Von 1919 bis 1925 entstand die Eisenbahnersiedlung Weissenstein in Bern. Trotz baulicher Veränderungen im Laufe der Jahre wird sie als einheitliche Siedlung wahrgenommen und sollte in diesem Kontext auch weitergebaut werden. Hohes Potenzial dafür erkannte man in den Siedlungsrändern und in vereinzelten Stellen in der Siedlung. Punktuelle Anbauten, Balkonerweiterungen und Lifteinbauten verbessern seitdem die Wohnqualität.Teil der Siedlung ist ausserdem das 1671 erbaute Weissensteingut, das 1920 von der Eisenbahner-Baugenossenschaft Bern (EBG) gekauft, vom Architekten Franz Trachsel umgebaut und mit einem neuen Südflügel gleichen Stils erweitert wurde. Bis heute ist das Gebäude der letzte erhaltene dreigeschossige Landsitz des Spätbarocks in der Umgebung von Bern und deshalb von hoher denkmalpflegerischer Bedeutung.
Modern bereichert
Mit dem 2020 abgeschlossenen Umbau durch W2H Architekten und auf Grundlage eines räumlichen Entwicklungskonzepts für die Siedlung hat das Weissensteingut in der genossenschaftlichen Gartenstadtsiedlung neue moderne Nutzungen erhalten. Der Geschäftssitz der EBG und gemeinschaftliche Nutzungen sind seitdem im Erdgeschoss im Mittelhaus des Guts mit publikumswirksamer Ausrichtung zur Dübystrasse zu finden, worüber auch der neu geschaffene Zutritt zum Gebäude erfolgt. Zusätzlich zu den genossenschaftlich genutzten Flächen im Erdgeschoss bereichert neuer Veranstaltungs- und Lagerraum das Untergeschoss.
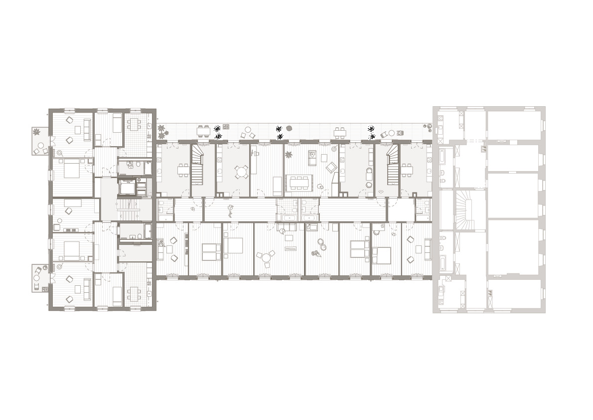
Ergänzend zu jenen im Obergeschoss entstanden überdies neue sowie altersgerechte Wohnungen im Dachgeschoss, das bisher Mansardenzimmern und Estrichräumen vorbehalten war. Damit konnte man in der Siedlung ein einladendes Zentrum für unterschiedliche Altersgruppen schaffen. «Eine versenkte Hebebühne im Aussenraum dient zur Überwindung der Schwelle zum Hochparterre. Im Gebäudeinneren führt ein Lift zu den Wohnungen. Die Anlage dafür wurde in einem der bestehenden Lichtschächte installiert, und der Wohnungseingang wurde entsprechend verschoben», erklärt Andreas Wenger, Projektleiter von W2H Architekten. Analog zum Bestand erhielt der Liftvorplatz einen neuen Terrazzoboden, und die Wohnungen bekamen ausreichend Stauraum. Mittels einer an den primären Innenaufbau rückverankerten Stahlkonstruktion in der Ebene der Holzbalkendecke realisierte man die Balkonvergrösserung mit schwellenlosem Zugang.
Alles unter einem Dach
Grössere Fenster im Erdgeschoss und die Rekonstruktion von Fassadenelementen führen das Mittelhaus zu einer Einheit zusammen. Eine neue leichte Stahlkonstruktion ergänzt zudem die Westfassade des Weissensteinguts und stellt bisher nicht vorhandenen Aussenraum für die Wohnungen im ersten Obergeschoss zur Verfügung.
Die historische Dachtragkonstruktion blieb bestehen und rückt prominent in das Blickfeld. Schlepplukarnen sowie Oberlichtverglasungen lassen ausreichend Tageslicht in die Innenräume des Dachgeschosses vordringen. «Nach sorgfältiger Analyse des Bestands konnten übergrosse Verglasungen in den Dachflächen realisiert werden. Erschwerend bei der Planung des Dachausbaus war nicht der Umstand der denkmalpflegerischen Bedeutung, sondern die Summe der baurechtlichen und brandschutztechnischen Anforderungen», erklärt Andreas Wenger. Decken und Wände wurden zudem mit hellem Fichtenholz verkleidet.
Umfassend optimiert
Auf den Einbau einer Photovoltaikanlage wird in Anbetracht des Schutzgrades des Objekts hingegen verzichtet. Mithilfe zusätzlicher Wärmedämmung an den grossen Dachflächen und den Kellerdecken konnte ein grosser Teil der Gebäudehülle thermisch optimiert werden. Bestehende Warmwasseraufbereitungen vom Weissensteingut wurden zudem zusammengeführt und durch eine zentrale Anlage ersetzt. «Das Entwicklungskonzept hat ausserdem gezeigt, dass der grösste Hebel zur Verbesserung der Energiebilanz in der Wahl der Wärmeerzeugung liegt», sagt der Architekt. Künftig soll die Wärme deshalb über einen Fernwärmeanschluss bereitgestellt werden. Bis dieser realisiert ist, erfolgt die Wärmeerzeugung weiterhin mit einer Ölheizung. Die Vorkehrungen für den späteren Wechsel wurden jedoch getroffen. Bis auf eine Tankanlage hat man alle bestehenden bereits zurückgebaut. ●
Bautafel
Objekt Weissensteingut
Standort Bern
Fertigstellung 2020
Bauherrschaft Eisenbahner-Baugenossenschaft Bern
Architektur W2H Architekten
















