Hotels und Restaurants – The Theatrical Spa
Ein Wellnessbereich, der die archaische Raumwahrnehmung in den Mittelpunkt stellt: Das ist die bestechende Idee des neuesten Projekts von Noa, das mit der klassischen Vorstellung eines Spa aufräumt.

Inmitten der atemberaubenden Natur Nordtirols hat das Architekturbüro Noa ein Konzept realisiert, das in einen starken Dialog zur Landschaft tritt. Glas- und Betongeometrien, die mit der Morphologie, der Kultur und der Geschichte des Ortes kommunizieren. Rund 80 Kilometer von Innsbruck entfernt, wurde 2018 die neue Wellnessoase des Hotels Mohr Life Resort eröffnet. Das Hotel mit seiner über 200 Jahre alten Geschichte liegt im traditionellen Tiroler Wintersportort Lermoos.
Natur als Inspiration
Der neue Glas- und Betonbau schmiegt sich an einen sanften Hang direkt unter der bestehenden Hotelanlage und gewährt einen einzigartigen Blick auf das weite Tal des Ehrwalder Beckens. Gekrönt wird das Panorama vom imposanten Massiv der Zugspitze, das mit seinen 3000 Metern Seehöhe die Grenze zwischen Österreich und Deutschland bildet.
«Es ist dann auch der Berg mit seiner majestätischen Präsenz und Energie, welcher der Brennpunkt unseres Projekts war», erklärt Architekt Christian Rottensteiner, Partner von Noa. Vor allem die Zugspitze ist aufgrund ihrer Schönheit, Stärke und formalen Komplexität das inspirierende Element und indirekt die Protagonistin des Bauvorhabens. Die neue Wellnessoase ist vergleichbar mit der Spielfläche eines Theaters, von dem sich das aussergewöhnliche Schauspiel der Natur bewundern lässt. «Unsere Herausforderung bestand darin, Räume zu kreieren, die es schaffen, die sensorischen Wahrnehmungen zu erweitern und zu intensivieren. Ein Ort, der den Besuchern Wohlbefinden und neue Emotionen vermitteln kann», so der Architekt.
An die Topografie angepasst
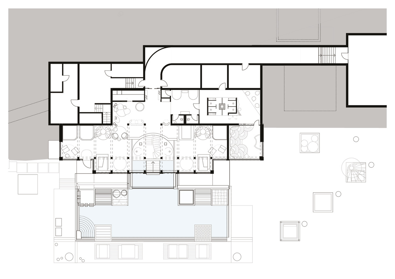
Der neue Wellnessbereich des Mohr Life Resort umfasst eine Fläche von rund 600 Quadratmetern und besteht aus einem neu errichteten Ruhebereich im Inneren sowie einem Aussenpool mit umliegendem Park. Der Pool ist über eine zentrale Einstiegszone mit dem Wellnessbereich verbunden und fungiert so als Bindeglied zwischen aussen und innen. Der Neubau besteht aus einer klar gegliederten Beton- und Glaskonstruktion, die an die leicht abfallende Geländetopografie angepasst und deshalb auf zwei Ebenen angelegt ist. Das neue Gebäude besticht durch seine zurückhaltende und leichte Architektur, die aus der Zusammenführung einfacher geometrischer Elemente resultiert: Betonrahmen, die auf zwei Ebenen das konstruktive Gefüge des Gebäudes bilden.
Darüber hinaus führt die Verwendung einer reflektierenden Glasoberfläche zu einem unerwarteten und eindrucksvollen Ergebnis: Die Baukörper selbst treten kaum in Erscheinung und werden zu einer Art Leinwand, auf der die gigantische Silhouette der Zugspitze inszeniert wird. Mehr noch: Der Pool, der die Glasfront des Spa über seine gesamte Länge säumt, verdoppelt wiederum das Bild des Berges in einem Spiel mit Referenzen und chromatischen Reflexionen von grosser Wirkungskraft.
Ein Erlebnisraum
Während die Struktur nach aussen ein streng lineares Schema aufweist, verändert sie nach innen ihren Charakter und nimmt organische, weiche und umhüllende Formen an. Der Unterschied in der Sprache zwischen innen und aussen verleiht dem Projekt eine besondere Spannung, die es ästhetisch und formal bereichert.
Die Entspannungsbereiche sind als Theaterbühnen organisiert, die sich auf den Berg ausrichten. Jede Bühne ist als Box mit jeweils zwei Liegemöglichkeiten ausgebildet. Man findet hier unterschiedliche Atmosphären: Räume mit doppelter Raumhöhe und Schaukeln, die von der Decke abgehängt und mit Stoffbahnen oder Stahlringen umhüllt sind. Offene Liegeinseln wechseln sich mit geschlossenen Lounges für mehr Privatsphäre und Ruhe ab. Im Erdgeschoss befinden sich ein privater Lounge-Bereich, eine Lobby mit Bar für kleine Snacks, das Spa mit einer Panoramasauna für rund 20 Personen sowie die Umkleidebereiche. Schliesslich führt eine elegante, halb gewendelte Treppe, die den Mittelpunkt des Gebäudes markiert, in den ersten Stock, wo symmetrisch weitere zehn Relaxbühnen angeordnet sind.
Aussenbereich und Materialien
Der Pool versteht sich als natürliche Erweiterung der Wellnesszone. Er erstreckt sich von innen nach aussen und bietet kleine Entspannungsbereiche mit unterschiedlichen sensorischen Erfahrungen. Sechs Inselboxen sind im Wasserbecken verteilt und führen die geometrische Struktur des dahinter liegenden Gebäudes weiter: Hier entmaterialisiert sich die Gliederung und verliert an Dichte, um einen möglichst unverstellten Blick auf die Landschaft freizugeben.
Das Zusammenspiel von Beton und Glas verleiht dem Projekt einen entschieden reduzierten modernen Charakter. Der Beton, der die Struktur des Gebäudes bildet, ist an der Fassade, am Pool, an den Aussenelementen wie den Wegen und Inseln im Garten unvermittelt sichtbar. Das Glas mit seinen Reflexionen und seiner Transparenz schafft wiederum einen Dialog zwischen dem Gebäude und der Landschaft. Die Böden sind mit einer durchgängigen Harzbeschichtung versehen, wodurch eine störende Fugenteilung vermieden wurde. Farblich hingegen werden die beiden Materialien – Beton und Harz – in Kontrast gesetzt und bleiben auch dank unterschiedlicher Texturen (rau und glatt) weiterhin als separate Werkstoffe erkennbar.
Farben und Stoffe
Die 20 Inseln des neuen Spa wurden exklusiv für dieses Projekt entworfen und sind massgefertigt. Für die Beleuchtung wurden klar sichtbare und stimmungsvolle Lampen gewählt, inspiriert von einem einzigen Leitmotiv, der Glaskugel, die je nach Umgebung und Bedarf in verschiedenen Versionen dekliniert wird: Mal ist sie ein spektakulärer Kronleuchter, der den Aufgang der Wendeltreppe begleitet, dann eine Glühbirnenreihe, die an die Beleuchtung einer Theaterumkleide erinnert, dann wieder eine einfache Kugel, welche die Wände punktiert.
Im Aussenbereich reflektiert die Fassade die Farbnuancen der Natur, die sich je nach Tages- und Jahreszeit ändern. Im Inneren schöpfen die Farben und Stoffe ihre Inspiration von der Bühne eines Theaters – hier finden sich Baumwollgewebe und weiche Samtstoffe in warmen Farbtönen von Bordeauxrot bis zu Braunnuancen. ●
Bautafel

Objekt Mohr Life Resort
Typologie Wellnessbereich
Standort Lermoos, Tirol
Architektur und Interior Design Noa (network of architecture)
Fertigstellung 2018
Gebäudevolumen 2800 m3
Fläche 430 m2














