Industriegebiet neu belebt
Ein ehemaliges Industriegebiet in Amsterdam wandelt sich zum trendigen, vielfältigen Wohn- und Geschäftsviertel. Entwurf und Ausführungsplanung stammen von Levs Architecten.

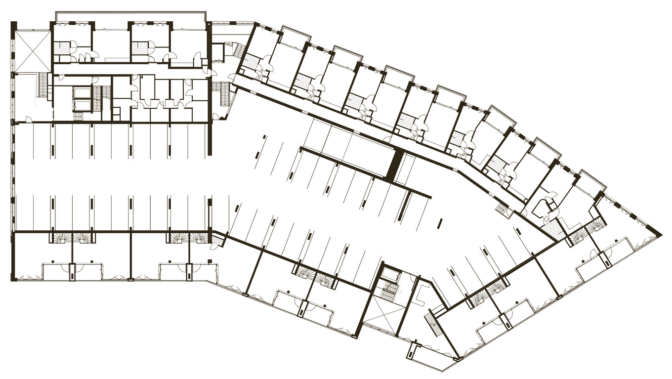
Im Entwicklungsgebiet Cruquius, im Osten Amsterdams, realisieren Levs Architecten das Bauwerk «De Bocht». Mit «De Loods» sowie «2Peer» wächst es zum Quartier De Binnenbocht zusammen, das räumlich an den Entrepot Harbour angebunden ist. Funktionell werden künftig in stilvollen Neubauten Arbeiten, Wohnen, Kultur und Nähe zum Wasser miteinander kombiniert.
Gebiet im Wandel
Der ehemalige Hafen für Ölraffinerie und Gewürzhandel verschwand bis 2006 fast vollständig und machte unter anderem Platz für die Schwerindustrie der Beton-, Stahl- und Abfallproduktion. Inzwischen planten Investoren die Entwicklung von Wohn- und Geschäftsgebäuden auf frei gewordenen Flächen der Insel Cruquius. Leer stehende Gebäude wurden bald von Start-ups und anderen Kreativen bevölkert, was das Interesse an der Gegend steigerte.
Was für Levs Architecten zunächst mit der Umgestaltung eines klassischen Lagerhauses begann, weitete sich anschliessend auf die Entwicklung der weiteren Insel mit zwei Wohngebäuden aus. Diese platzieren sich entlang der inneren Wasserfront. Auf die ungewöhnliche dreieckige Form des Grundstücks reagierte man mit einer städtebaulichen und architektonischen Kohärenz zwischen den verschiedenen Typologien der drei Gebäude und den angrenzenden Grundstücken. Alle drei Bauten eint die Ausrichtung zum Wasser und zum lebendigen Zentrum.
Während sich «2Peer» zur Bewahrung des historischen Charakters vor allem des industriellen gestalterischen Ausdrucks bedient und für Wohneigenschaften konzipiert wurde, präsentiert das umgebaute Lagerhaus «De Loods» Loftwohnungen. Es nutzt die Konturen des ursprünglichen Lagers und integriert bestehende konstruktive Elemente wie Dachbalken aus Stahl, Lichtbänder im First und Ziegelfassaden.
Wichtige Vermittlungsfunktion
Durch Abtreppung mit Terrassenbildung übernimmt «De Bocht» eine wichtige Vermittlerfunktion innerhalb des Gebiets, um hinsichtlich der Gebäudehöhen mit den benachbarten Bauten zu kommunizieren und ein harmonisches Gesamtbild zu erzeugen. Der sich bis auf 15 Etagen erstreckende winkelförmige Baukörper von «De Bocht» ist ausserhalb der Docklinie situiert und bildet einen eleganten Abschluss zum Entrepot Harbour. Auf der zum Wasser geneigten Gebäudeseite erfolgt die Abtreppung vom siebten bis zum dritten Stockwerk. Die weissen Backsteinfassaden mit breiten Panoramafenstern verbinden sich mit den neuen Dockgebäuden auf der Südseite des Entrepot Harbour. Im Inneren vereint das Bauwerk Sozialwohnungen und Penthäuser.
Effiziente Fassadenplanung
Die anspruchsvolle Planung von «De Bocht» mit unterschiedlichen Funktionen und Wohnungstypologien profitierte besonders bei der Fassadenplanung von Building Information Modeling (BIM). So entstanden unter anderem die 1000 Fassadenelemente in der Vorfabrikation, wovon die Hälfte der Elemente aus einem Gesamtpaket mit Beton, Mauerwerk, Dämmung, Fensterrahmen, Glas und Lüftungsgittern besteht. Fassadenarbeiten mit Gerüsten erübrigten sich dadurch.
In der Funktion als BIM-Koordinatoren und mithilfe integraler Kommunikation über den Modellierungsprozess konnten Levs Architecten einen reibungslosen Ablauf zwischen allen Beteiligten ermöglichen. Ein Anschluss an den neuen wassergekühlten Aquifer-Wärmeenergiespeicher (Ates) des Gebiets Cruquius verdeutlicht zudem den Nachhaltigkeitsgedanken des Quartiers De Binnenbocht. Der neue öffentliche Raum wird den industriellen Charakter und die Kombination aus Neu und Alt unterstützen. ●
Bautafel
Objekt De Binnenbocht
Standort Amsterdam
Fertigstellung 2021
Bauherrschaft Amvest
ArchitekturLevs Architecten
Landschaftsgestaltung Buro Lubbers
Gebäudeprogramm 26 000 m² mit 150 zum Teil sozialen Miet- und Eigentumswohnungen mit grosser Typenvielfalt, 700 m² Gewerbefläche und 3 Parkhäuser







